DỰ ÁN KHU ĐÔ THỊ HỖN HỢP SUN GROUP NHA TRANG – ĐỊNH HƯỚNG ĐÔ THỊ HIỆN ĐẠI BẬC NHẤT VEN BIỂN
Nha Trang – thành phố biển nổi tiếng với vẻ đẹp thiên nhiên tuyệt sắc và tiềm năng du lịch bậc nhất Việt Nam – đang chứng kiến sự thay đổi mạnh mẽ về hạ tầng và bất động sản. Trong bối cảnh đó, sự xuất hiện của khu đô thị hỗn hợp Sun Group Nha Trang được kỳ vọng sẽ tạo nên cú hích lớn, không chỉ kiến tạo một cộng đồng sống hiện đại mà còn nâng tầm diện mạo đô thị. Với quy mô hàng trăm hecta, quy hoạch đồng bộ và tiện ích “tất cả trong một”, dự án hứa hẹn trở thành trung tâm phồn hoa mới của thành phố biển trong tương lai.
.png)
TỔNG QUAN DỰ ÁN SUN GROUP NHA TRANG
Dự án khu đô thị hỗn hợp Sun Group Nha Trang được định hướng trở thành một trong những quần thể đô thị hiện đại, đồng bộ và quy mô bậc nhất tại thành phố biển Nha Trang. Với tổng diện tích hàng trăm hecta, dự án tích hợp nhiều loại hình bất động sản như căn hộ cao tầng, nhà phố liền kề, biệt thự đơn lập – song lập, trung tâm thương mại, hệ thống trường học, công viên và chuỗi tiện ích khép kín.
Theo thông tin được công bố, dự án sở hữu tổng vốn đầu tư lên tới hàng chục nghìn tỷ đồng, hứa hẹn tạo nên một diện mạo đô thị mới, đồng thời trở thành điểm nhấn kinh tế – xã hội của khu vực Nam Trung Bộ.

-
Tên dự án: Khu đô thị hỗn hợp Nha Trang
-
Chủ đầu tư: Công ty CP Tập đoàn Mặt Trời (Sun Group)
-
Vị trí: Xã Vĩnh Thái và phường Phước Long, TP Nha Trang
-
Tổng quy mô: 226,7 ha
-
Quy mô dân số: 20.000 người
-
Tổng vốn đầu tư: Hơn 17.330 tỉ đồng
-
Thời gian thực hiện: 6 năm (từ quý IV/2024 – quý IV/2030)
-
Thời hạn hoạt động dự án: 50 năm

VỊ TRÍ DỰ ÁN SUN GROUP NHA TRANG
Sun Group Nha Trang Khánh Hòa sở hữu vị trí chiến lược tại phía Tây thành phố biển Nha Trang, thuộc địa giới hành chính xã Vĩnh Thái và một phần nhỏ phường Phước Đồng. Đây được xem là tọa độ “vàng” khi vừa thuận tiện kết nối giao thông, vừa thừa hưởng trọn vẹn nguồn vượng khí sông – núi – biển bao quanh, kiến tạo nên môi trường sống lý tưởng cho cư dân.


Ranh giới dự án được xác định rõ ràng như sau:
-
Phía Đông: giáp sông Quán Trường và các khu đô thị phía Tây đường Lê Hồng Phong, trung tâm TP. Nha Trang
-
Phía Tây: giáp sông Tắc và khu dân cư phía Bắc Tỉnh lộ 3, xã Phước Đồng
-
Phía Nam: giáp Đồng Bò và khu dân cư Hòn Rớ, xã Phước Đồng
-
Phía Bắc: giáp đường Phong Châu và khu đô thị Mỹ Gia
Với lợi thế “tam cận” – cận giang, cận lộ, cận thị, Sun Group Nha Trang không chỉ thuận tiện kết nối trung tâm thành phố và các trục giao thông huyết mạch, mà còn hội tụ đầy đủ yếu tố phong thủy thịnh vượng, mang đến tiềm năng phát triển bền vững trong tương lai.
Ngoài ra, từ dự án cư dân có thể dễ dàng tiếp cận các điểm đến nổi tiếng của Nha Trang như: Tháp Bà Ponagar, VinWonders, Hòn Chồng, Bãi Dài, chợ Đầm và các bãi biển trung tâm. Đây được xem là lợi thế lớn giúp khu đô thị vừa thuận tiện an cư, vừa giàu tiềm năng khai thác du lịch – thương mại.

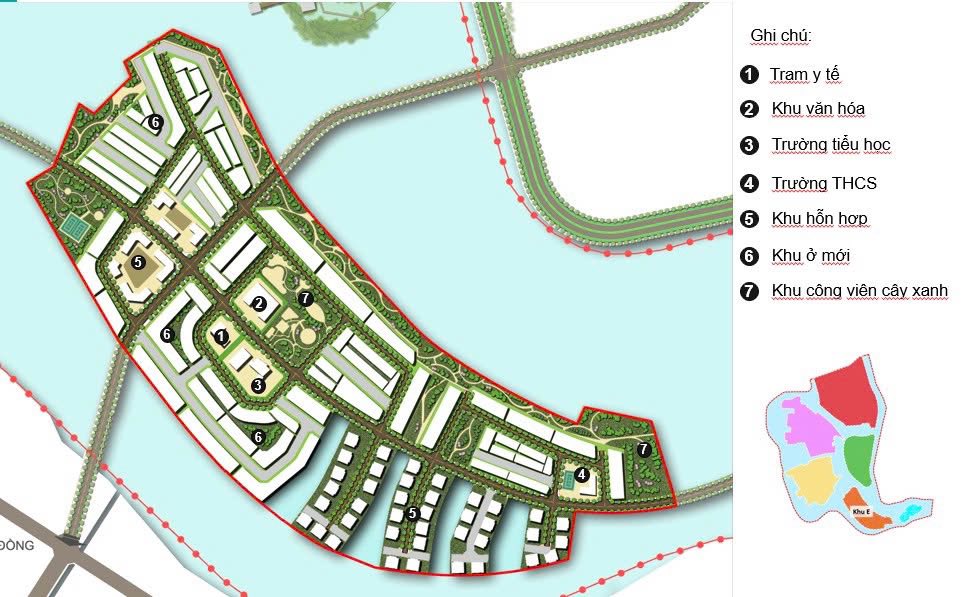
BẢNG QUY HOẠCH SỬ DỤNG ĐẤT SUN GROUP NHA TRANG
Khu đô thị hỗn hợp Sun Group Nha Trang được quy hoạch bài bản, đáp ứng cả nhu cầu phát triển đô thị lẫn không gian sống chất lượng cho cư dân. Theo kế hoạch, diện tích đất xây dựng 6 phân khu – bao gồm khu đô thị, công viên và trung tâm hành chính mới – chiếm khoảng 399,51 ha, tương đương 61,04% tổng diện tích quy hoạch.
Phần còn lại, khoảng 255,04 ha (38,96%) được dành cho các mục đích khác, bao gồm không gian xanh, hạ tầng kỹ thuật và các tiện ích cộng đồng, góp phần hình thành một khu đô thị đồng bộ, hiện đại và thân thiện với môi trường.



PHÂN KHU SUN GROUP NHA TRANG

Dự án khu đô thị hỗn hợp Nha Trang chia thành 6 phân khu để quản lý về tổ chức không gian kiến trúc cảnh quan như sau:
-
Tiểu khu A – Khu trung tâm hành chính
-
Đây là trung tâm quản lý và điều hành của toàn dự án.
-
Dự kiến bố trí các tòa nhà hành chính, các cơ quan quản lý và dịch vụ công cộng.
-
-
Tiểu khu B – Khu công viên sinh thái đô thị
-
Không gian xanh, sinh thái cho cư dân và du khách.
-
Bao gồm công viên, hồ điều hòa, đường dạo bộ và các tiện ích ngoài trời.
-
-
Tiểu khu C – Khu đô thị dịch vụ
-
Khu thương mại, cửa hàng dịch vụ, nhà hàng, café.
-
Hỗ trợ nhu cầu mua sắm và giải trí cho cư dân.
-
-
Tiểu khu D – Khu đô thị dịch vụ Thanh Phong
-
Tập trung vào dịch vụ cao cấp, có thể bao gồm văn phòng, khách sạn, trung tâm thương mại.
-
-
Tiểu khu E – Khu đô thị dịch vụ
-
Phục vụ các nhu cầu thương mại và tiện ích bổ sung cho cư dân.
-
-
Tiểu khu F – Khu đô thị dịch vụ
-
Dành cho các dịch vụ mở rộng, khu vực thương mại và dịch vụ đa chức năng.
-
Tiểu khu A – Khu trung tâm hành chính Sun Group Nha Trang

-
Quy mô: khoảng 133,51 ha
-
Dân số dự kiến: khoảng 6.398 người
-
Tính chất:
-
Là trung tâm hành chính của toàn dự án.
-
Bao gồm khu dân cư hiện trạng chỉnh trang và khu đô thị mới kết hợp với dịch vụ thương mại.
-
Được thiết kế nhằm tạo điểm nhấn về kiến trúc cảnh quan và tiện ích đô thị, phục vụ cư dân và du khách.
-
Tiểu Phân Khu B – Khu đô thị hỗn hợp Nha Trang

Tính chất: Là khu công viên sinh thái
Quy mô: khoảng 52,93 ha.
Tiểu Phân Khu C – Khu đô thị hỗn hợp Sun Group Nha Trang

-
Quy mô: khoảng 90,77 ha
-
Dân số dự kiến: khoảng 16.550 người
-
Tính chất: Khu đô thị dịch vụ, được quy hoạch để đáp ứng đầy đủ nhu cầu sinh hoạt và đời sống của cư dân.
Tiểu Phân Khu D – Khu đô thị hỗn hợp Sun Group Nha Trang

-
Quy mô: khoảng 71,51 ha
-
Dân số dự kiến: khoảng 12.752 người
-
Tính chất: Khu đô thị dịch vụ, phục vụ nhu cầu sinh hoạt và đời sống của cư dân.
Tiểu Phân Khu E – Khu đô thị hỗn hợp Sun Group Nha Trang

-
Quy mô: khoảng 41,61 ha
-
Dân số dự kiến: khoảng 12.500 người
-
Tính chất: Khu đô thị dịch vụ, được quy hoạch để đáp ứng nhu cầu sinh hoạt và đời sống của cư dân
Tiểu Phân Khu F – Khu đô thị hỗn hợp Sun Group Nha Trang

-
Quy mô: khoảng 9,19 ha
-
Dân số dự kiến: khoảng 400 người
-
Tính chất: Khu đô thị dịch vụ, đáp ứng nhu cầu sinh hoạt và đời sống của cư dân.
TIỆN ÍCH DỰ ÁN SUN GROUP NHA TRANG
Một trong những điểm nổi bật khiến dự án Sun Group Nha Trang thu hút sự quan tâm là hệ thống tiện ích “all-in-one”. Cư dân có thể tận hưởng cuộc sống đầy đủ, tiện nghi mà không cần di chuyển xa:
-
Công viên trung tâm, quảng trường rộng lớn
-
Hồ điều hòa, đường dạo bộ ven sông
-
Trường học quốc tế, bệnh viện tiêu chuẩn cao
-
Trung tâm thương mại, siêu thị, khu vui chơi giải trí , bến du thuyền
-
Khu thể thao: sân tennis, hồ bơi, phòng gym, spa
-
Hệ thống an ninh 24/7 và hạ tầng kỹ thuật đồng bộ
Tiện ích toàn diện giúp cư dân trải nghiệm phong cách sống thượng lưu, đồng thời gia tăng giá trị bất động sản trong tương lai.

NHÀ PHỐ LIỀN KỀ SUN GROUP NHA TRANG
Khu nhà phố liền kề được xem là sản phẩm tiềm năng dành cho những nhà đầu tư muốn khai thác thương mại dịch vụ hoặc kinh doanh du lịch. Thiết kế hiện đại, mặt tiền thoáng rộng, thuận tiện mở cửa hàng, café, homestay hoặc văn phòng.
Đây là lựa chọn phù hợp cho khách hàng vừa muốn sở hữu nơi ở, vừa tận dụng lợi thế vị trí để kinh doanh sinh lợi.

VILLA ĐƠN LẬP SUN GROUP NHA TRANG
Villa đơn lập tại dự án được xây dựng trên những lô đất rộng, 4 mặt thoáng, đảm bảo sự riêng tư tối đa. Kiến trúc sang trọng, hài hòa cùng cảnh quan tự nhiên, mang lại trải nghiệm sống đẳng cấp như một khu nghỉ dưỡng 5 sao.
Sản phẩm hướng đến nhóm khách hàng thượng lưu, gia đình đa thế hệ muốn tận hưởng không gian sống trong lành và khẳng định vị thế.

VILLA SONG LẬP SUN GROUP NHA TRANG
Villa song lập có diện tích nhỏ hơn villa đơn lập nhưng vẫn giữ được phong cách thiết kế cao cấp. Các căn được bố trí song song, chung một bức tường, tối ưu hóa công năng và chi phí đầu tư.
Đây là phân khúc phù hợp cho các gia đình trẻ, muốn trải nghiệm không gian sống hiện đại, gần gũi thiên nhiên nhưng vẫn trong tầm tài chính hợp lý hơn so với villa đơn lập.

CĂN HỘ SUN GROUP NHA TRANG
Khu căn hộ cao tầng tại Sun Group Nha Trang sẽ mang đến lựa chọn đa dạng: từ căn studio, 1 phòng ngủ cho đến căn hộ 2 – 3 phòng ngủ và penthouse cao cấp. Với thiết kế mở, ban công rộng, tầm nhìn hướng biển, căn hộ là sản phẩm lý tưởng cho giới trẻ năng động, chuyên gia nước ngoài hoặc khách hàng muốn đầu tư cho thuê ngắn hạn.
.png)
Bên cạnh đó, chủ đầu tư dự kiến áp dụng công nghệ xây dựng hiện đại, quản lý vận hành thông minh, giúp gia tăng trải nghiệm tiện ích cho cư dân.
CÓ NÊN ĐẦU TƯ MUA DỰ ÁN ĐÔ THỊ SUN GROUP NHA TRANG?

Có nhiều lý do để các nhà đầu tư và khách hàng cân nhắc sở hữu bất động sản tại dự án Sun Group Nha Trang:
-
CHỦ ĐẦU TƯ UY TÍN: Sun Group là tập đoàn hàng đầu Việt Nam trong lĩnh vực bất động sản, du lịch, vui chơi giải trí. Các dự án của Sun Group luôn đảm bảo tiến độ, chất lượng và giá trị bền vững.
-
VỊ TRÍ ĐẮC ĐỊA: Dự án tọa lạc tại trung tâm phát triển mới của Nha Trang, thuận tiện kết nối giao thông và giàu tiềm năng khai thác du lịch.
-
QUY HOẠCH ĐỒNG BỘ: Từ căn hộ, nhà phố đến biệt thự, tất cả được quy hoạch khép kín, hiện đại và hài hòa.
-
TIỆN ÍCH TOÀN DIỆN: Đáp ứng mọi nhu cầu sống – học tập – vui chơi – nghỉ dưỡng.
-
TIỀM NĂNG SINH LỜI: Với sự phát triển mạnh mẽ của du lịch Nha Trang, giá trị bất động sản tại dự án hứa hẹn tăng trưởng vượt bậc trong tương lai.
👉 Dự án khu đô thị hỗn hợp Sun Group Nha Trang không chỉ là nơi an cư lý tưởng mà còn là kênh đầu tư sinh lời bền vững, phù hợp với nhiều nhóm khách hàng từ an cư, nghỉ dưỡng cho đến kinh doanh, đầu tư.

